HEALTH CARE

【つくばみらい市知的障害者複合施設】

提案1―メディカルケアサポートシステムの概要

 

【つくばみらい市知的障害者複合施設】

提案2―クリエイティブコンセプト

 

【つくばみらい市知的障害者複合施設】

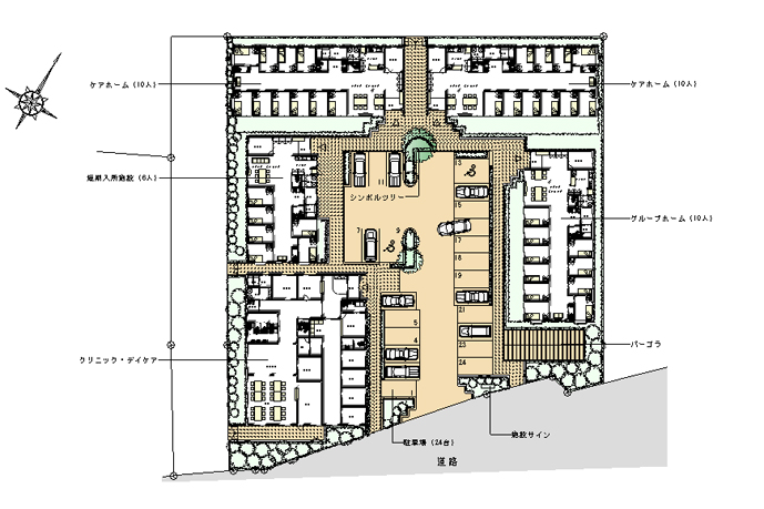
提案3―マスタープラン

 

【つくばみらい市知的障害者複合施設】

提案4―立面・断面図