【渋谷松涛SOHO】
提案2―資産価値を高めるために
【渋谷松涛SOHO】
提案3―資産価値を維持するために
【渋谷松涛SOHO】
提案4―外観パース
【渋谷松涛SOHO】
提案5―立面図
【渋谷松涛SOHO】
提案6―1階鳥瞰パース
【渋谷松涛SOHO】
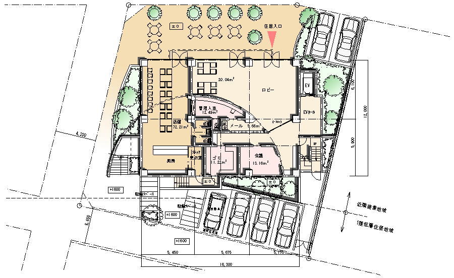
提案7―1階平面図
【渋谷松涛SOHO】
提案8―2階平面図
【渋谷松涛SOHO】
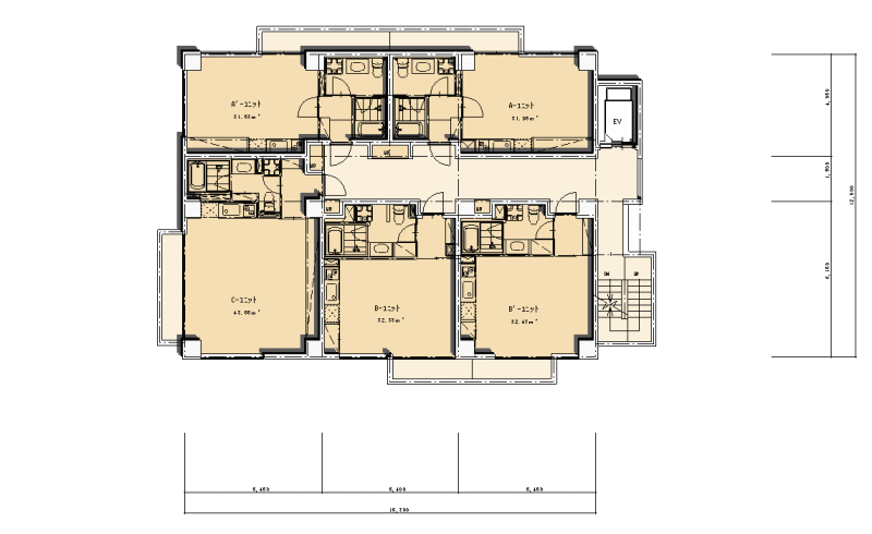
提案9―3~6階平面図
【渋谷松涛SOHO】
提案10―7~12階平面図
【渋谷松涛SOHO】
提案11―天空率検討図1
【渋谷松涛SOHO】
提案12―天空率検討図2
【渋谷松涛SOHO】
提案13―天空率検討図3
