【Iレジデンス】
提案1―イメージ写真
【Iレジデンス】
提案2―内観イメージ
【Iレジデンス】
提案3―中庭・光庭イメージ
【Iレジデンス】
提案4―外観イメージ
【Iレジデンス】
提案5―イメージパース
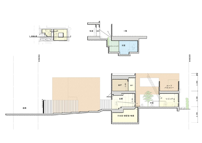
【Iレジデンス】
提案6―断面図1
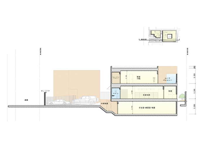
【Iレジデンス】
提案7―断面図2
【Iレジデンス】
提案8―断面図3
【Iレジデンス】
提案9―1階平面図
【Iレジデンス】
提案10―2階平面図
【Iレジデンス】
提案11―地下1階平面図
【団塊世代の二世帯住宅】
設計コンセプト
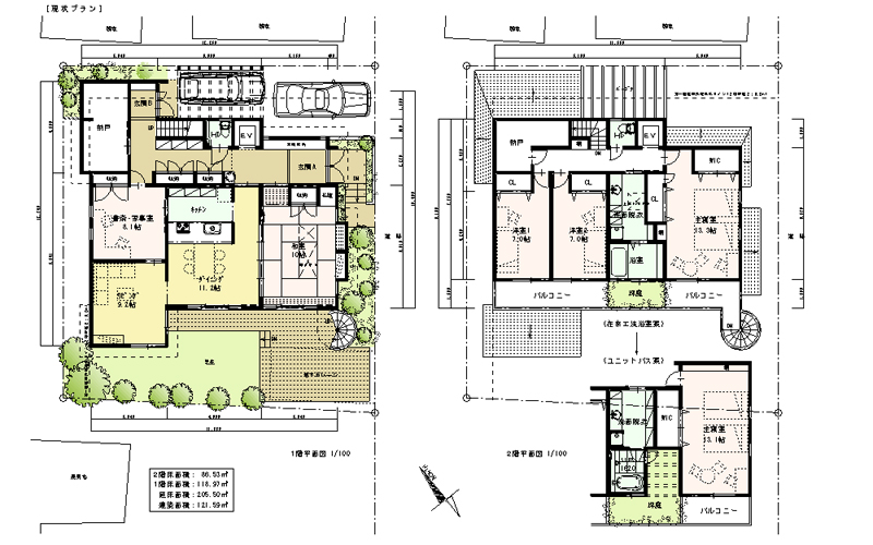
【団塊世代の二世帯住宅】
現状プラン
【団塊世代の二世帯住宅】
将来プランA(上下分居型)
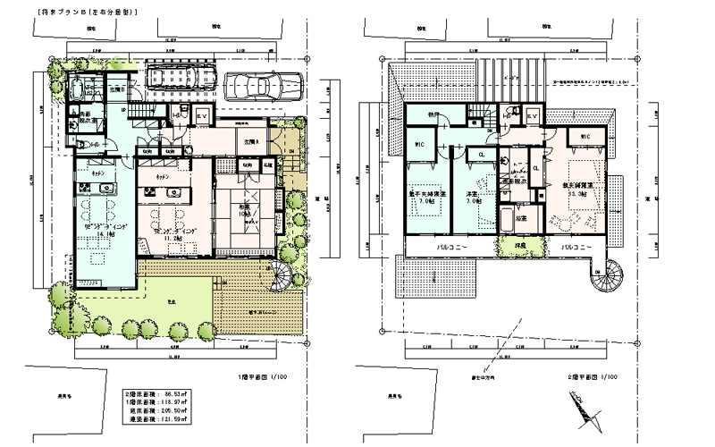
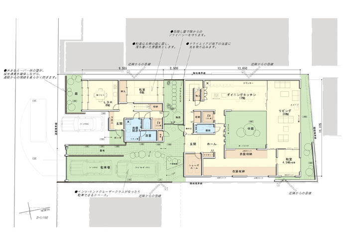
【団塊世代の二世帯住宅】
将来プランB(左右分居型)
